Cabaña Cuzuca
La Cabaña Cuzuca, fue diseñada para Agustín Francesa y Dixie Alfaro, fue concebida con amor por una pareja de abuelos para recibir a sus nietos durante sus paseos, creando un refugio lleno de calidez y afecto.
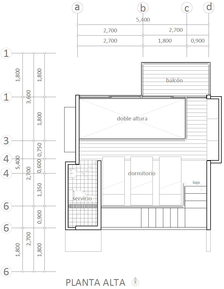
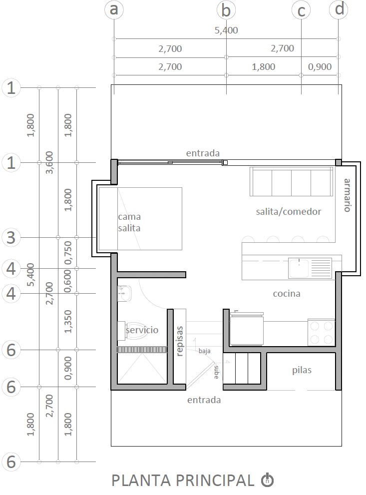
Está diseñada en terrazas para integrarse armoniosamente en el terreno agrícola de Zarcero, en la encantadora zona rural de Costa Rica, es una modesta y acogedora cabaña.
Está inspirada en una cabaña tradicional estilo chalé, pero ha sido diseñada con un enfoque minimalista, aprovechando al máximo los espacios disponibles para satisfacer las necesidades básicas de alojamiento de dos adultos y tres niños.
Las vistas se abren hacia el campo, aprovechando la luz indirecta del norte. Un pequeño balcón se asoma de la fachada para ofrecer un espacio cómodo para disfrutar del frío de la zona y apreciar los atardeceres al oeste.
Cada espacio ha sido planeado con detalle, asegurando una estancia cómoda y práctica para todos los visitantes, optimizando el presupuesto.







